Nestled in the picturesque Midway, this 2024 Park City Showcase of Homes is a stunning Cape Cod masterpiece in Midway, Utah. Set on half an acre in the Saddle Creek Midway development, this 6-bedroom, 6-bath home seamlessly blends vacation-style amenities with everyday luxury living. Boasting breathtaking views of Mount Timpanogos and the Wasatch Range, the residence offers a thoughtfully designed layout that balances comfort, functionality, and refined elegance.
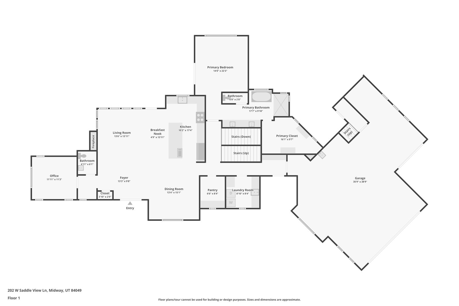
The light-filled interior features exquisite finishes, including hardwood floors on the main level and a mix of marble, tile, stone, and plush carpet throughout. The gourmet kitchen, equipped with high-end Thermador appliances and quartz countertops, opens to a covered patio with a built-in BBQ—perfect for entertaining. A naturally lit pantry includes a Bosch double-door utility refrigerator, while a separate dining area with barnwood timbers offers a cozy space to enjoy meals with unparalleled mountain vistas.
The lower level surprises and delights with its unique amenities: a children’s playhouse, a luxurious sauna and cold plunge, two game areas, a fully ventilated barnwood-paneled safe and vault room, and a separate entrance and exit for added functionality. Additional highlights include three laundry areas, a three-car heated garage with an epoxied floor and utility sink, and a mudroom outfitted with custom cabinets and seating.
A private guest apartment on the second floor matches the main home’s impeccable finishes and features its own kitchen, washer/dryer, and all essential appliances, making it ideal for extended family or visitors.
Outdoor spaces are equally inviting, with a spacious covered patio providing the perfect spot to unwind on warm summer evenings. The Saddle Creek Midway community enhances the experience with walkways, greenbelts, and play areas, while its proximity to Provo Canyon, Midway’s charming Center Street, and the world-class amenities of Heber Valley makes it an unbeatable location.
This home isn’t just a place to live—it’s a retreat to savor. Schedule your visit today to imagine life in this exceptional property!
1. Property Overview
Style: Refined Cape Cod design
Location: Saddle Creek Midway Development, Heber Valley
Lot Size: Half an acre
Bedrooms/Bathrooms: 6 bedrooms, 6 baths
Key Features: Vacation-style amenities for everyday living, stunning mountain views
2. Interior Features
Main Level:
Light-filled, open-concept design
Hardwood floors throughout
Gourmet kitchen with:
Thermador appliances
Quartz countertops
Naturally lit pantry with Bosch double-door utility refrigerator
Living room with a cozy fireplace
Separate dining area with barnwood timbers and mountain views
Lower Level:
Children’s playhouse
Sauna and cold plunge
Two game areas
Fully ventilated, barnwood-paneled safe and vault room
Separate entrance and exit
Laundry area with washer/dryer
Upper-Level Guest Apartment:
Private and fully equipped with:
Full kitchen
Washer/dryer
Matching high-end finishes
3. Outdoor Amenities
Covered patio with:
Built-in BBQ area
Spectacular views of Mount Timpanogos and the Wasatch Range
Spacious yard with access to:
Walkways
Greenbelts
Play areas
4. Additional Highlights
Garage: Heated, three-car capacity with:
Epoxied flooring
Utility sink
Mudroom: Custom cabinets and seating
Flooring Throughout: Marble, tile, stone, and carpet for added luxury
Laundry: Three separate laundry areas for convenience
5. Community and Location
Saddle Creek Midway Development
Half-acre lots with new construction
Charming, well-maintained neighborhood
Nearby Attractions:
Close proximity to Deer Valley's East Village
Provo Canyon
Midway’s Center Street
World-class Heber Valley amenities